Miguel Fontaine Négociateur
Télécharger la fiche

Appartement 2 pièce(s) 1 chambre(s) 87.28 m²

Le Mans (72000)
162 750 € Référence 2554

A propos de ce bien

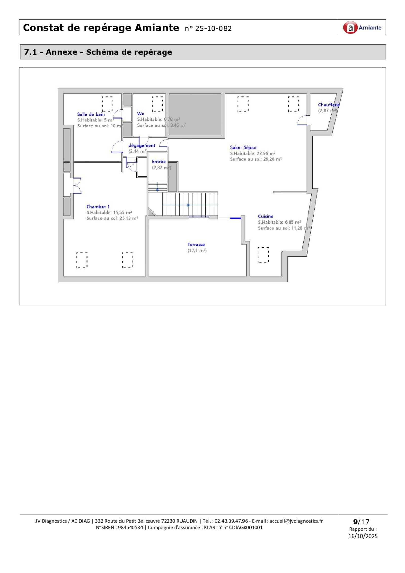
Votre agence Fontaine Immobilier vous propose sur la commune du Mans secteur gare / Palais des congrès (Rue Paul Beldant ). Un appartement au 5ème et dernier étage comprenant : Entrée, cuisine ouverte sur salon, une chambre, salle de bains, wc, chaufferie, cave, garage. Surface totale de l'appartement 87,28 surface Carrez 57,40.


Les informations sur les risques auxquels ce bien est exposé sont disponibles sur le site Géorisques

Caractéristiques de ce bien

  • Surface 87,28 m²
  • séjour 26 m²
  • 1 chambre(s)
  • 1 salle(s) de bain
  • construit en 1999
  • cuisine américaine (semi-équipée)
  • Chauffage individuel : radiateur (gaz)
  • 1 garage(s)
  • 5ème étage
  • 5 étage(s)
  • ascenseur
  • cave
  • balcon

Diagnostics énergétiques

DPE
GES

Montant estimé des dépenses annuelles d'énergie pour un usage standard est compris entre 1 030 € et 1 450 € . Prix moyens des énergies indexés sur les années 2021, 2022 et 2023 (abonnements compris).

Informations financières

Prix de vente honoraires TTC inclus 162 750 €
Prix de vente honoraires TTC exclus 155 000 €
Honoraires TTC à la charge acquéreur 5 %
Taxe foncière annuelle 1 447 €

Informations de copropriété

Copropriété Oui
Lot n° 028
Quote part annuelle des charges 1 792,44 €

Calcul des mensualités

* Champs obligatoires