Description de l'offre
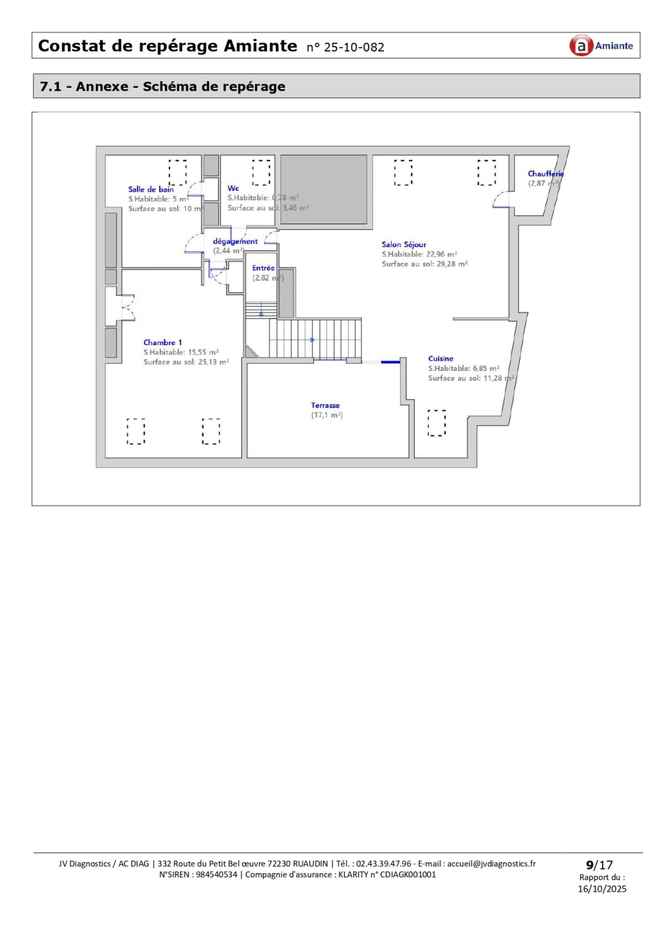
Votre agence Fontaine Immobilier vous propose sur la commune du Mans secteur gare / Palais des congrès (Rue Paul Beldant ). Un appartement au 5ème et dernier étage comprenant : Entrée, cuisine ouverte sur salon, une chambre, salle de bains, wc, chaufferie, cave, garage. Surface totale de l'appartement 87,28 surface Carrez 57,40.
Les informations sur les risques auxquels ce bien est exposé sont disponibles sur le site Géorisques
